- Acuarela Residencial:Un Concurso de Arquitectura que Redefine Zapopan, Jalisco Descubriendo la Vanguardia Arquitectónica en Dos Complejos Excepcionales
En el tejido urbano de Zapopan, Jalisco, nace una visión arquitectónica audaz:Acuarela Residencial. Este concurso de arquitectura da vida a dos complejos que, con ingenio y elegancia, buscan transformar el paisaje urbano. A través de una combinación única de usos mixtos, diseño habitacional distintivo y amenidades Premium, Acuarela Residencial se presenta como un hito en la innovación arquitectónica.

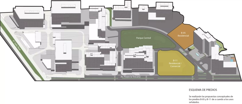
- Complejo de Usos Mixtos - Fusionando Comercio y Residencia:
- El primer complejo de Acuarela Residencial da vida a una mezcla dinámica de comercio y residencia en un entorno arquitectónico excepcional. Ubicado estratégicamente para capturar vistas panorámicas al parque central, este complejo alberga 210 unidades de departamentos. La torre definida, con 13 niveles, compuesta por 2 niveles comerciales y 11 residenciales, se eleva como una estructura icónica que integra a la perfección la vida urbana y la armonía natural.

Características Destacadas de la Torre Habitacional Premium:
Diseño de Vanguardia:
Diseño de Vanguardia:
La torre Premium incorpora un diseño arquitectónico innovador que refleja la elegancia y la modernidad. Cada detalle está concebido para ofrecer una experiencia residencial incomparable.
Ubicación Privilegiada:
Frente al parque central, esta torre se erige como un enclave de lujo, proporcionando a los residentes vistas panorámicas y un acceso inigualable a la naturaleza circundante.
Departamentos Amplios:
Los departamentos de esta torre ofrecen un lujo de espacio y comodidad, estableciendo un nuevo estándar para el mercado residencial de la zona.
Amenidades Premium:
La experiencia se eleva con amenidades premium cuidadosamente seleccionadas, que incluyen áreas recreativas, zonas de relajación y espacios sociales de lujo.
DATOS
- Tipo de Proyecto:Uso Mixto
- Status:Concurso
- Ubicación:Guadalajara; Zapopan, Jalisco
- M2 construidos:89,175 M2
- M2 vendibles:31,795 M2
- Departamentos= 295
EQUIPO
- Socios:Gerardo Velasco del Castillo
- Bernardo Cantero Rebolledo
- Gonzalo Cantero Rebolledo
- Arquitectura:Pablo López / Pepe Garduño
- Fotografía / Renders:Pepe Garduño
- Cliente:DMI